1. Accueil
  2. Études CVC-D & Plomberie
  3. Etude CFD d'une salle serveurs
Retour

Etude CFD d'une salle serveurs

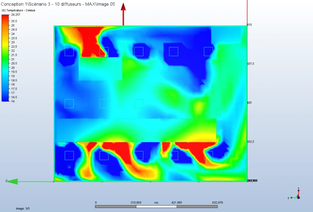
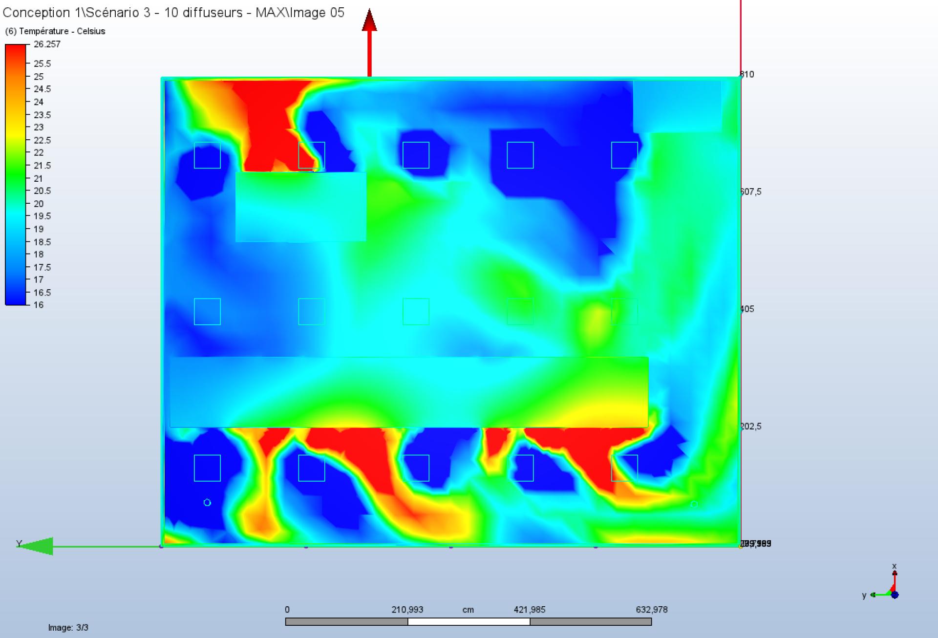
Étude CFD pour optimiser le refroidissement d’une salle informatique

Nous avons récemment réalisé une étude CFD (Computational Fluid Dynamics) pour analyser l’efficacité du refroidissement d’une salle informatique équipée de baies informatiques.

Objectif du client : Vérifier le bon refroidissement des serveurs installés dans les baies.
Analyse réalisée :

Partager :
Nous écrire
Les champs indiqués par un astérisque (*) sont obligatoires
Une question ? Une demande ?
Pour tout renseignement n'hésitez pas nous contacter !